北京发布2025年第三轮拟供住宅用地清单
AI导读:
北京市规划和自然资源委员会发布了2025年度第三轮拟供应商品住宅用地清单,共5宗地块,总面积约30公顷,计划于2025年4月底前供应。地块分别位于海淀区、石景山区、昌平区及怀柔区,均位于市场需求突出、基础设施和公共服务配套较完善的区域。
3月31日,北京市规划和自然资源委员会网站发布了2025年度第三轮拟供应商品住宅用地清单,共包含5宗地块,总面积约30公顷,建筑规模达到约52万平方米,计划于2025年4月底前正式供应。这一消息引起了广泛关注。

本次推出的地块均坐落于市场需求旺盛、基础设施及公共服务设施相对完备的区域,其中3宗地块靠近地铁6号线站点,1宗则邻近地铁昌平线站点。从地域分布来看,这5宗地块分别位于海淀区(2宗)、石景山区(1宗)、昌平区(1宗)以及怀柔区(1宗)。
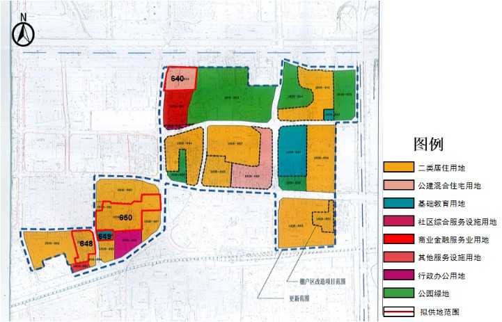
微信公众号“北京规划自然资源”透露,海淀区的2宗地块为宝山村棚改项目0016地块及0017地块,坐落于四季青镇西南部,四环至五环之间,临近阜石路及地铁6号线廖公庄站。周边不仅有清华大学玉泉医院、万达广场购物中心等资源,教育和医疗配套设施也相对完善。

海淀区宝山村棚改项目的这两宗地块备受瞩目。
石景山区的西黄村棚改项目1606-640等地块位于苹果园街道,五环至六环之间,临近地铁6号线杨庄站和西黄村站,距离城市干道西五环和阜石路约1公里。该项目紧邻苹果园商圈,周边教育、医疗和商业配套设施较为丰富。

石景山区西黄村棚改项目同样受到市场关注。
昌平新城东区土地一级开发项目CP00-1101-0026等地块位于南邵镇,北六环外,靠近地铁昌平线北邵洼站,交通便利。地块周边有白浮泉公园、路劲世界广场以及中关村科技园区昌平园东区,生活设施完善,教育配套设施齐全。

昌平新城东区土地开发项目备受瞩目。
怀柔区HR00-0103-6012地块位于怀柔城区,北六环外,距大广高速怀柔收费站入口约5公里。地块周边有怀柔汽车总站、北京中医医院怀柔医院、京北大世界购物中心、青春万达广场等,教育和医疗生活配套设施较为完善,景色优美,生态宜居。

怀柔区HR00-0103-6012地块也是市场焦点之一。
(文章来源:澎湃新闻)
郑重声明:以上内容与本站立场无关。本站发布此内容的目的在于传播更多信息,本站对其观点、判断保持中立,不保证该内容(包括但不限于文字、数据及图表)全部或者部分内容的准确性、真实性、完整性、有效性、及时性、原创性等。相关内容不对各位读者构成任何投资建议,据此操作,风险自担。股市有风险,投资需谨慎。如对该内容存在异议,或发现违法及不良信息,请发送邮件至yxiu_cn@foxmail.com,我们将安排核实处理。

